Anfahrt
|
Kontakt
|
Impressum
Home
Profil
Büro
Kernkompetenzen
Leistungen
Beratung
Vorbereitung
Planung
Projekte
Wohnen
Bildung
Gesundheit Altenpflege
Gewerbe
Städtebau
Denkmalpflege
Öffentliche Bauten
Wettbewerbe
Öffentlichkeit
Ehrungen
Publikationen
Partner
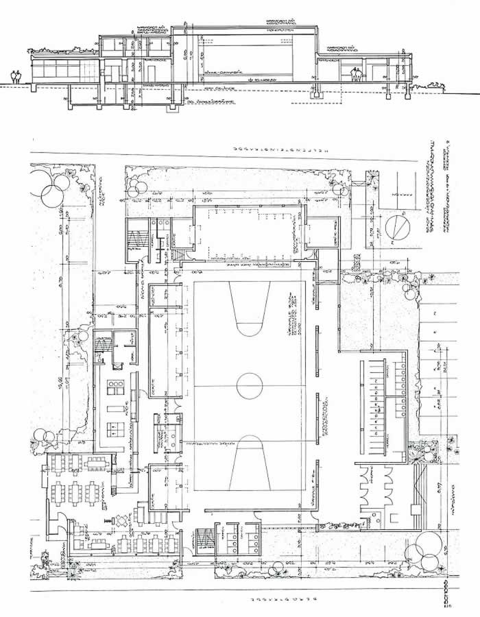
Schulbau / Kindergarten / Sportstätten Neubau:
- Turn- und Festhalle in Niederstotzingen
Zurück zur Projektübersicht
Dipl. Ing. Architekt VfA Wolfgang Stocker - Verdistr. 7 - 81247 München - Tel.: 089-89161547 Fax: 089-81059960